| Section | Dimensions | Area of Section | Weight | Moment of Inertia | Modulus of Section | |||||
|---|---|---|---|---|---|---|---|---|---|---|
| Type | W (mm) | h (mm) | t (mm) | Per pile (cm2) |
Per pile (kg/m) |
Per wall Width (kg/m2) |
Per pile (cm4/m) |
Per wall Width (cm4/m) |
Per pile (cm3) |
Per wall Width (cm3/m) |
| SP-4 | 400 | 170 | 15.50 | 96.99 | 76.10 | 190 | 4,670 | 38,600 | 362 | 2,270 |
| SP-3* | 400 | 125 | 13.00 | 76.42 | 60.00 | 150 | 2,220 | 16,800 | 223 | 1,340 |
| Size (mm) | Weight (kg/m) | Area of Section (cm2) | Moment of Inertia (cm4) | Radius of Gyration (cm) | Moment of Section (cm3) | |||
|---|---|---|---|---|---|---|---|---|
| A x B x t1 x t2 x r | W | A | lx | ly | ix | iy | Zx | Zy |
| 300x300x10x15x18 | 94 | 119.80 | 20,400 | 6,750 | 13.10 | 7.51 | 1,360 | 450 |
| 350x350x12x19x20 | 137 | 173.90 | 40,300 | 13,650 | 15.20 | 8.84 | 2,300 | 776 |
| 400x400x13x21x22 | 172 | 218.70 | 66,600 | 22,400 | 17.50 | 10.10 | 3,330 | 1,120 |
| 594x302x14x23x28 | 175 | 222.40 | 137,000 | 10,600 | 24.90 | 6.90 | 4,620 | 701 |
| Type | L (kg/m) | 9.0 | 7.5 | 6.0 | 5.4 | 4.5 | 3.6 | 3.0 | 2.1 | 1.5 | 0.9 |
|---|---|---|---|---|---|---|---|---|---|---|---|
| H-35Y | 150 | 1,350 | 1,125 | 900 | 810 | 675 | 540 | 450 | 315 | 225 | 135 |
| H-40Y | 200 | 1,800 | 1,500 | 1,200 | 1,080 | 900 | 720 | 600 | 420 | 300 | 180 |
| Item | Size | H350Y | H400Y |
|---|---|---|---|
| Auxiliary Material Distance Piece (DP) |
0.60 | 115 | 150 |
| 0.45 | 90 | 120 | |
| 0.30 | 70 | 95 | |
| 0.20 | 60 | 75 | |
| 0.15 | 50 | 65 | |
| 0.10 | 40 | 55 | |
| Bracket Angle | L450x650 | 12 | - |
| Press Angle | L550 | 7 | - |
| Long Bolt | L850 | 3 | 3 |
| CP | - | 55 | - |
| Item | Size | H350Y | H400Y |
|---|---|---|---|
| Angle Reinforcement Fitting (ARF) |
30° | 160 | 210 |
| 45° | 110 | 170 | |
| 60° | 130 | 180 | |
| CRF | 45° | 130 | 190 |
| Angle Bracket (AB) | - | 45 | - |
| Cover Plate (CPL) | L550/L850 | 18 | 45 |
| Gusset Plate | 90 | 20 | 50 |
| Jack Reinforcement Fitting (JRF) | L1,500 | 100 | 120 |
| Mild Bolt | M22x65 | 0.45 | 0.45 |
| H.T Bolt | M22x75 | 0.75 | 0.75 |
| Description | Dimensions | Weight (kg) | |||
|---|---|---|---|---|---|
| Type (mm) | H (mm) | Area (m2) | Per pc. | Per Sq.m | |
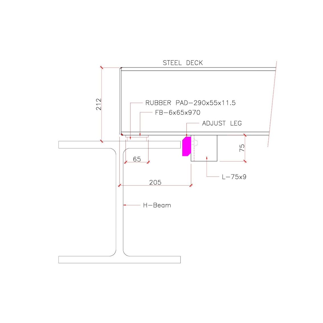
| Steel Deck | 1000x2000 | 212 | 2 | 368 | 184 |
| Steel Deck | 1000x3000 | 212 | 3 | 552 | 184 |
| Description | Dimensions | Weight (kg) | |||
|---|---|---|---|---|---|
| Type (mm) | H (mm) | Area (m2) | Per pc. | Per Sq.m | |
| Steel Platform | 1500x6000 | 252 | 9.00 | 2,680 | 298 |
| Description | Dimensions | Weight (kg) | ||
|---|---|---|---|---|
| Type (mm) | H (mm) | Area (m2) | Per pc. | |
| Steel Plate | 1524x6096 | t=19 | 9.00 | 1,385 |
| Steel Plate | 1524x6096 | t=22 | 9.00 | 1,604 |
| Steel Plate | 1524x6096 | t=25 | 9.00 | 1,823 |
| Type | Catalog No. | Bearing Capacity (tf) | Hydraulic Pressure (tf) | Hydraulic Stroke (mm) | Standard Length (mm) | Weight (kg) |
|---|---|---|---|---|---|---|
| KJ-150 | (KJ-150) | 150 | - | 200 | 500 | 110 |
| KJ-250 | (KH-350) | 250 | 200 | 155 | 755 | 240 |
| UJ-350 | (H-40) | 350 | 120 | 125 | 440 | 200 |
| UJ-400 | (U-35) | 400 | 250 | 150 | *685 | *410 |
| DN-40 | (DN-40) | 350 | 200 | 150 | *685 | *410 |